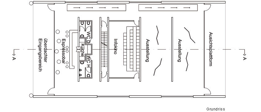
Infocenter Grundriss