Infocenter Garzweiler
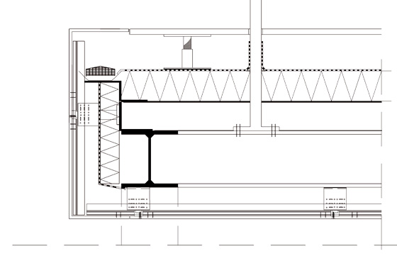
Dieses Projekt bestand nicht nur aus dem Entwurf eines Informationszentrums, welches dem Ort angepasst ist, sondern beinhaltete auch die baukonstruktive Auseinandersetzung mit der Gebäudehülle, der Statik, sowie der Einhaltung von Normen, Vorschriften und technischen Regeln.

